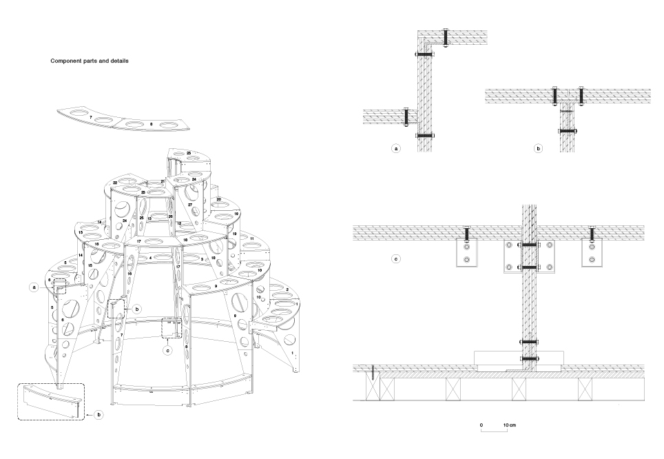
OBRA architects LOGIC

 

The book is a monograph of the New York based studio OBRA, led by Pablo Castro and Jennifer Lee. Logic traces the trajectories of nine selected architectural projects: Casa Osa in Costa Rica, Freedom Park in South Africa, Beatfuse! in New York, Casa en la finca in Argentina, Oxymoron Pavilion in China, Casa para un viñatero in Argentina, Urbia, Furniture System for Small Apartments in Big Cities in New York, Ascoli nuovissimo in Italy SanHe Kindergarten in China, and includes critical essays and texts by Jean Louis Cohen, Peter Lynch, Nader Tehrani, Zhou Yi and Pablo Castro.

 

Already in the ambiguity of its title—which can be read as Obra’s understanding of a [universal] Logic or instead as Obra’s particular variety of the way architects think—Obra Architects Logic touches upon the ambiguity operating behind each of their architectural proposals. It is as if in every project Obra would pose the architectural question: is there a metaphysical explanation for the way things are or is this explanation only psychological in character?

 

Logic presents us with an Obra determined to channel the divided condition of the architecture of the city through each and every project. This invariable of Obra’s work, the constant presence of an implicit city, inhabits the typological mutations that propel forward Obra’s architecture. It is as if on the face of a spectacle of the city dissolving into procedural regulations and an administrative “common" sense in the name of behavioral understanding of culture, Obra’s work would quietly propose the experiment of trying to consistently weave the world with the two basic strains of inhabited space: one born out of a craving for community and the other born out of a love for solitude—the two poles across which spans architecture as the scene of our emotional longing.