195 - 203
<
>
Peder Duelund Mortensen
Homes-Ensembles-City Housing and Welfare in Copenhagen
Homes|Ensembles|City envisages the coming housing projects of Copenhagen. The book shows 36 building projects of the near future after a thoroughly introduction by the author on the three scale-modules of the dwelling, the housing ensembles and the city, suggesting that the city is to be perceived, conceived and lived in terms of the relationship between the home and the public realm. Hence not only public spaces but also housing ensembles become essential elements in defining the morphology of the city.
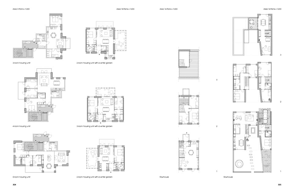
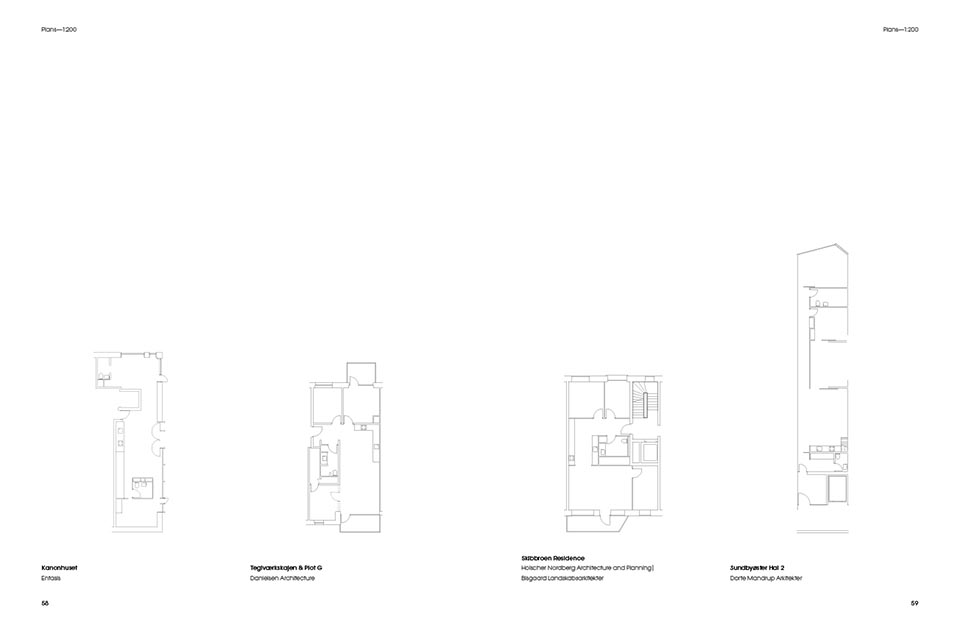
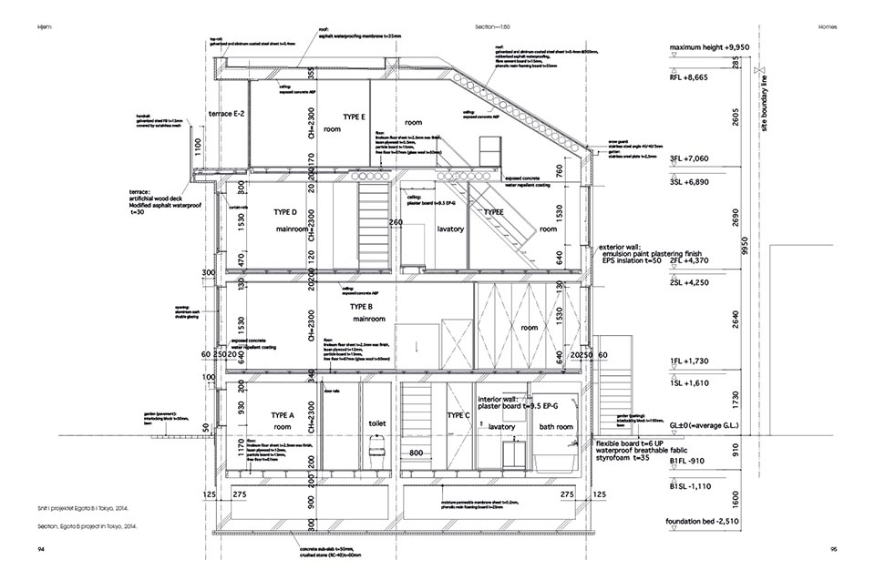
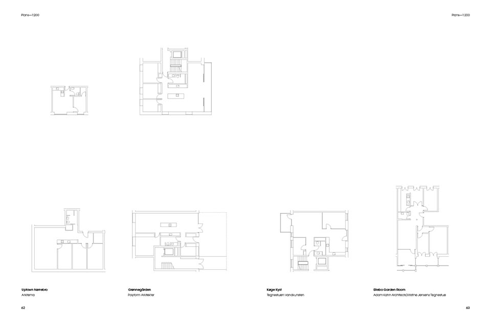
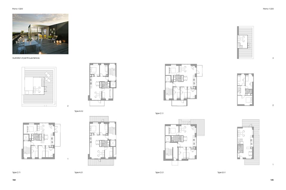
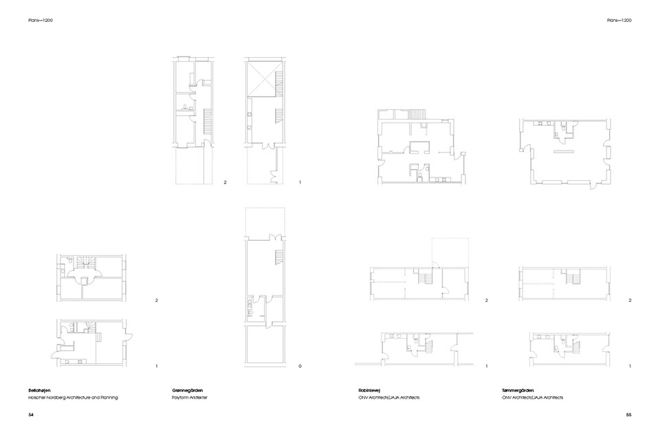
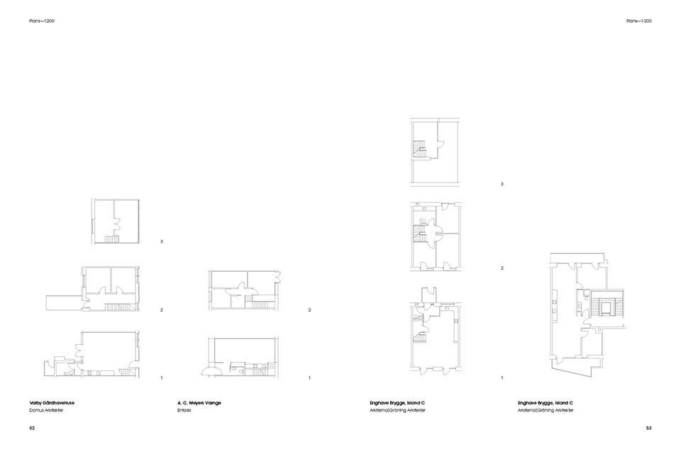
The book focuses at the architecture of the dwelling. Redrawn plans in scale 1:200 of dwelling types based on original drawings give an overview of the lay-out for the coming home-building. Sections of the facade visualize in some cases the details, sense and tectonics of the building envelope linking private and public spheres. The author supplements with some inspiring projects from Germany and Japan, and has a critical eye to the future development of dwellings in Copenhagen.
The book is written by Peder Duelund Mortensen, architect at the Institute of Building and Landscape of the Academy of Architecture in Copenhagen.